Haus, Einfamilienhaus

Ehemalige Gaststätte mit großzügigem Grundstück sowie über 1200m² Nutzfläche!

25712 Großenrade

Über das Objekt

Baujahr 1894

Grundstück 5871 m2

Wohnfläche 229.13 m2

Zimmer 8

Badezimmer 2

Stellplätze 2

Objektdaten

  • Objektnr.BU-502-PVO-25
  • Wohnfläche229.13 m2
  • Grundstück5871 m2
  • Zimmer8
  • Schlafzimmer4
  • Badezimmer2
  • Stellplätze2
  • ObjektartHaus
  • Nutzfläche1240.09 m2
  • Baujahr1894
  • AusstattungStandard
  • Gäste-WCJa
  • BalkonNein
  • TerrasseNein

Über das Objekt

Hier ist Platz für Ihre Lebensträume, Sie benötigen dafür viel Fläche? Da können wir helfen!
Sie träumen von einem Ort, an dem Sie sich frei entfalten können? Wo Wohnen, Arbeiten und Ihre persönlichen Leidenschaften unter einem Dach Platz finden? Dann lassen Sie sich von diesem besonderen Anwesen begeistern!

Ursprünglich als Bauernhof entstanden, entwickelte es sich über die Jahre zur gut besuchten Gaststätte – ein Ort, an dem Menschen zusammenkamen, lachten und feierten. Heute wartet es darauf, mit neuem Leben erfüllt zu werden!
Das Herzstück ist zweifellos der große ehemalige Saal, der einst bis zu 200 Gäste beherbergte. Hier finden Sie großzügige Nebenräume, eine Bühne und sanitäre Anlagen. Doch damit nicht genug: Das Gebäude bietet weit mehr als nur Geschichte. Die derzeitigen Eigentümer nutzen es noch als Wohnhaus, mit einer gemütlichen Küche, einem Wohnzimmer und dem ursprünglichen Schankraum, der auf eine kreative Neunutzung wartet.
Folgen Sie dem Flur, so erreichen Sie den hinteren Bereich des Hauses, der mit Vorratsräumen und einer Öl-Heizungsanlage ausgestattet ist.
Für mehr Platzbedarf sorgt zudem ein Büro, eine Werkstatt sowie ein Lager – ideal für alle, die gerne handwerken oder Platz für ihr Business benötigen. Und für Ihre Fahrzeuge und größere Projekte gibt es eine geräumige Halle mit mehreren Stellplätzen.

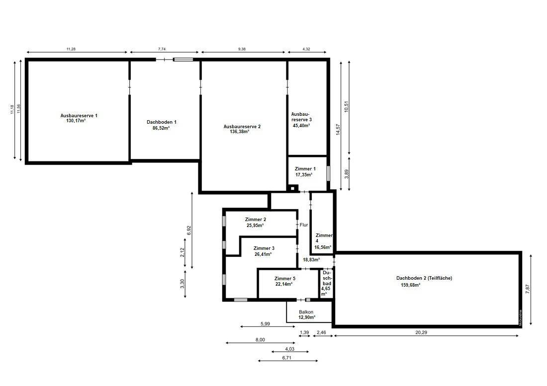
Im Dachgeschoss erwartet Sie behaglicher Wohnraum: Mehrere Zimmer bieten genügend Platz für die ganze Familie, ergänzt durch ein Badezimmer und eine ausgebaute Bürofläche mit zusätzlichem Stauraum.
Doch auch draußen lässt dieses Anwesen keine Wünsche offen! Auf einem weitläufigen Grundstück von 5.871 m² haben Sie genug Platz für Tiere, Gartenfreuden oder einfach nur für Ihre Ideen. Pferdefreunde kommen hier genauso auf ihre Kosten wie Naturverbundene. Und mit zahlreichen Parkplätzen sowie einem Carport bleibt auch Ihre Mobilität bestens versorgt.
Hier finden Sie all den Raum, den Sie sich wünschen – ein Zuhause voller Möglichkeiten! Natürlich stehen einige Modernisierungsarbeiten an, doch mit etwas Liebe und Kreativität lässt sich dieses Haus in ein echtes Juwel verwandeln. Lassen Sie sich inspirieren und erfüllen Sie sich Ihren Wohntraum!

Energiedaten

  • EnergieeffizienzklasseH
  • Energiebedarf344.51 kWh (m2a)
  • PrimärenergieträgerÖl
  • Energieausweisdatum06.03.2026
  • Energieausweis ArtBedarfsausweis
  • Energie mit WarmwasserNein
  • Baujahr1894
Kaufpreis279.000,00 €

Courtage: 3,57% inkl. MwSt.

Peter von Osten
Für alle Ihre Anliegen

Herr Peter von Osten
Immobilienberater

Telefon: 004917663065115
Mobil: 004917663065115

peter.vonosten@werth-immobilien.de

Lage und Umgebung

In idyllischer Lage im Herzen von Großenrade, einem charmanten Ort in Schleswig-Holstein, präsentiert sich dieses attraktive Einfamilienhaus. Die ruhige Umgebung bietet eine perfekte Balance zwischen ländlicher Idylle und guter Anbindung an urbane Annehmlichkeiten.

Die Lage eignet sich hervorragend für Familien, die Wert auf Ruhe und Natur legen, ohne auf die Vorzüge der Infrastruktur verzichten zu müssen. Großenrade, mit seiner überschaubaren Größe, bietet ein familiäres Umfeld, in dem Kinder sicher aufwachsen können. Die umliegende Natur lädt zu ausgedehnten Spaziergängen und Radtouren ein, ideal für aktive Familien und Naturliebhaber.

Pendler schätzen die gute Verkehrsanbindung, die eine unkomplizierte Fahrt in umliegende Städte ermöglicht. Gleichzeitig bietet die Lage Ruhesuchenden und Heimarbeitern ein entspanntes Umfeld für konzentriertes Arbeiten.

Die Nähe zu lokalen Einkaufsmöglichkeiten, Schulen und Ärzten macht den Alltag bequem und unkompliziert. Für Freizeitaktivitäten finden sich in der Umgebung zahlreiche Möglichkeiten, von Sportanlagen bis hin zu kulturellen Angeboten in den nahegelegenen größeren Städten.

Diese Lage vereint somit die Vorteile des Landlebens mit der Nähe zu städtischen Annehmlichkeiten – ein idealer Ort für alle, die Ruhe und Komfort gleichermaßen schätzen.

In der Nähe

  • Kindergaerten-4,0 KM
  • Grundschule-3,0 KM
  • Realschule-4,5 KM
  • Einkaufsmoeglichkeiten-5,0 KM
  • Gymnasium-15,0 KM
  • Autobahn-10,0 KM
  • Zentrum-5,0 KM

Kontakt zu Ihrem Immobilienberater

Peter von Osten
Für alle Ihre Anliegen

Herr Peter von Osten
Immobilienberater

Telefon: 004917663065115
Mobil: 004917663065115

peter.vonosten@werth-immobilien.de

    Ich bitte um:
    Bitte beweise, dass du kein Spambot bist und wähle das Symbol Flugzeug.

    Energieausweis erstellen

    Ihr Energieausweis in wenigen Schritten - Schnell, günstig und rechtskonform

    jetzt erstellen
    Kontakt

    Wie kann ich Ihnen helfen?

    Ansprechpartner

    Sven Möller

    Geschäftsführung Vertrieb

    Telefon: 04832 – 979 2971
    Mobil: 0160 – 9777 1163

    Dürfen Wir Sie zurückrufen?

      Kontaktformular