Haus, Einfamilienhaus

Ein Haus, viele Möglichkeiten – Schwiegertraum oder Mieteinnahme?

25712 Burg (Dithmarschen)

Über das Objekt

Baujahr 1915

Grundstück 756 m2

Wohnfläche 120.67 m2

Zimmer 7

Badezimmer 3

Stellplätze 3

Objektdaten

  • Objektnr.BU-562-VS-26
  • Wohnfläche120.67 m2
  • Grundstück756 m2
  • Zimmer7
  • Schlafzimmer3
  • Badezimmer3
  • Stellplätze3
  • ObjektartHaus
  • Nutzfläche25 m2
  • Baujahr1915
  • AusstattungStandard
  • Gäste-WCJa
  • BalkonJa
  • TerrasseJa

Über das Objekt

Diese großzügige Immobilie berührt vom ersten Moment an durch ihre besondere Atmosphäre, ihre durchdachte Raumaufteilung und die vielen Möglichkeiten, die sie ihren zukünftigen Bewohnern eröffnet. Aktuell wird das Haus als eine Wohneinheit genutzt, doch es lässt sich mit Leichtigkeit in zwei separate Wohneinheiten aufteilen, indem Erdgeschoss und Dachgeschoss voneinander getrennt werden – ideal für Mehrgenerationenwohnen, zur Vermietung oder für Wohnen und Arbeiten unter einem Dach. Ergänzt wird das Angebot durch eine Garage sowie einen Garten in schöner Größe, der angenehm von der Straße wegliegt und Raum für Ruhe, Entspannung und persönliche Rückzugsorte bietet.
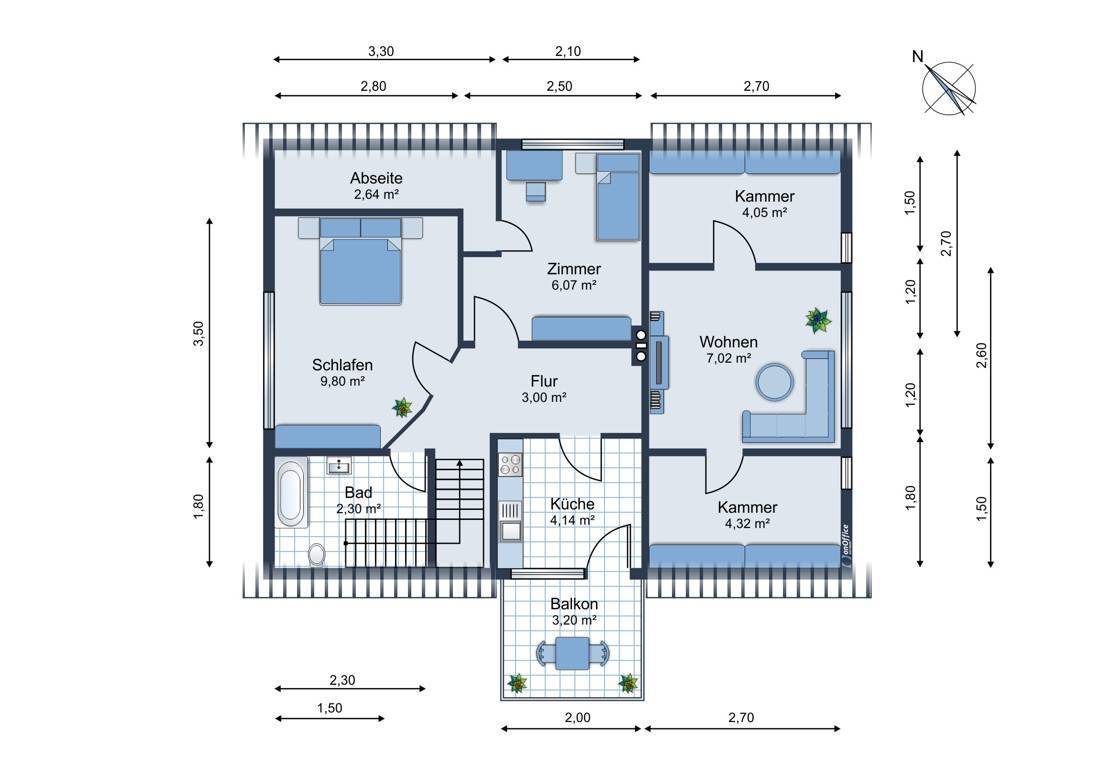
Das Erdgeschoss empfängt Sie hell und großzügig, hohe Decken lassen einen Moment innehalten und ein wenig in vergangene Zeiten eintauchen. Hier befinden sich eine Küche mit zeitloser Einbauküche und direktem Zugang zum Vorratskeller – perfekt für Eingemachtes und Vorräte. Das Wohnzimmer schließt unmittelbar an die Küche an und ist über eine elegante Doppelflügeltür mit dem Esszimmer verbunden, das alternativ auch als Büro oder zusätzliches Schlafzimmer genutzt werden kann. Vom Flur aus erreichen Sie das eigentliche Schlafzimmer des Erdgeschosses mit modernem Bad, ein weiteres Badezimmer ergänzt diese Ebene. Auch die Heizung ist hier untergebracht. Zusätzlich stehen im Erdgeschoss zwei weitere Räume zur Verfügung, die sich ganz nach Ihren Vorstellungen als Partyraum, Werkstatt oder für andere kreative Ideen nutzen lassen – Platz dafür ist in jedem Fall vorhanden.
Das Dachgeschoss überzeugt ebenfalls mit einer vollständigen Wohneinheit bestehend aus Wohnzimmer, zwei weiteren Zimmern, einer Küche, einem Flur und einem Badezimmer. Ein Balkon sorgt für zusätzlichen Wohnkomfort und lädt zum Verweilen ein. Zwei praktische Kammern bieten viel Stauraum und können entweder zu einem begehbaren Kleiderschrank umgestaltet werden oder durch das Entfernen der Wände zu einem großzügigen Zimmer zusammengeführt werden. Auch hier zeigt sich die Flexibilität dieser Immobilie, die sich mühelos an individuelle Wohnwünsche anpassen lässt.
Dank der klaren Trennung der Etagen eignet sich dieses Haus sowohl für Familien mit großem Platzbedarf als auch für Käufer, die über eine Aufteilung in zwei Wohneinheiten nachdenken. Ein Zuhause mit Herz, Substanz und außergewöhnlichem Potenzial, das Raum für verschiedenste Lebensentwürfe bietet.

Energiedaten

  • EnergieeffizienzklasseF
  • Energiebedarf176.39 kWh (m2a)
  • PrimärenergieträgerGas
  • Energieausweisdatum27.01.2036
  • Energieausweis ArtBedarfsausweis
  • Energie mit WarmwasserNein
  • Baujahr1915
  • HeizungsartZentralheizung
Kaufpreis259.000,00 €

Courtage: 3,57% inkl. MwSt.

Verena Schulz
Für alle Ihre Anliegen

Frau Verena Schulz
Immobilienberaterin

Telefon: 004948252222
Mobil: 004917624817887

verena.schulz@werth-immobilien.de

Lage und Umgebung

Der Luftkurort Burg liegt im schönen Kreis Dithmarschen in Schleswig Holstein und zeichnet sich durch seine reizvolle geographische Lage und die malerische Umgebung aus.
Die Landschaft um Burg ist geprägt von einer hügeligen Geestlandschaft und wird von Waldgebieten und landwirtschaftlichen Flächen umgeben, die zur ländlichen und naturnahen Atmosphäre beitragen. Die Burger Au, ein kleiner Fluss, der durch die Region fließt, verstärkt dieses idyllische Bild. Der nahegelegene Nord-Ostsee-Kanal, eine der meistbefahrenen künstlichen Wasserstraßen der Welt, verleiht der Region zusätzlichen Reiz.
Burg ist ein idealer Ort für Familien, die ihre Kinder naturnah aufwachsen lassen möchten. In der Umgebung erfreuen zahlreiche Bauernhöfe mit frischen regionalen Produkten direkt vom Erzeuger. Dies fördert nicht nur eine gesunde Ernährung, sondern ermöglicht auch Einblicke in das ländliche Leben und die landwirtschaftliche Produktion.
Im Ort gibt es vielfältige Einkaufsmöglichkeiten, darunter verschiedene Supermärkte, Bäcker und eine Apotheke, die den täglichen Bedarf der Einwohner und Besucher decken. Das wunderschöne Waldschwimmbad lädt in den Sommermonaten zum Baden und Entspannen ein. Der Ort verfügt über verschiedenste Vereine und Freizeitaktivitäten, die ein Highlight für jede Altersklasse sind. Das Angebot an Sport- und Freizeitmöglichkeiten ist vielfältig: es gibt hügelige Wälder für den Ausdauersport, Bmx strecken im Wald, eine Paintball-Halle, Fußball-Vereine, Kampfsport-Vereine und vieles mehr.
Burg verfügt über einen Bahnhof an der Bahnstrecke Hamburg-Westerland, der eine gute Anbindung an den öffentlichen Nahverkehr bietet. Die Autobahn A23 ist etwa 15 Kilometer entfernt und ermöglicht eine zügige Verbindung nach Hamburg und in andere Teile Schleswig-Holsteins.

Diese positiven Anbindungen ermöglichen den Einwohnern die Vorteile des ruhigen Lebens an der Küste mit den Vorzügen der nahegelegenen Metropole zu kombinieren.

Insgesamt ist Burg (Dithmarschen) ein sehr attraktiver Ort in Schleswig-Holstein mit einer naturnahen Umgebung, guter Verkehrsanbindung und einem reichen historischen Erbe, der ideale Voraussetzungen für ein erfülltes und naturverbundenes Leben bietet!

In der Nähe

  • Kindergaerten-0,5 KM
  • Grundschule-0,8 KM
  • Realschule-0,9 KM
  • Einkaufsmoeglichkeiten-0,1 KM
  • Gymnasium-15,0 KM
  • Autobahn-15,0 KM
  • Zentrum-0,2 KM

Kontakt zu Ihrem Immobilienberater

Verena Schulz
Für alle Ihre Anliegen

Frau Verena Schulz
Immobilienberaterin

Telefon: 004948252222
Mobil: 004917624817887

verena.schulz@werth-immobilien.de

    Ich bitte um:
    [honeypot user-name id:user-name class:user-name validautocomplete:true move-inline-css:true nomessage:true]
    [honeypot weburl id:weburl class:weburl validautocomplete:true move-inline-css:true nomessage:true]
    Bitte beweise, dass du kein Spambot bist und wähle das Symbol Haus.

    Energieausweis erstellen

    Ihr Energieausweis in wenigen Schritten - Schnell, günstig und rechtskonform

    jetzt erstellen
    Kontakt

    Wie kann ich Ihnen helfen?

    Ansprechpartner

    Sven Möller

    Geschäftsführung Vertrieb

    Telefon: 04832 – 979 2971
    Mobil: 0160 – 9777 1163

    Dürfen Wir Sie zurückrufen?

      [honeypot kontakt_wohnort validautocomplete:true move-inline-css:true nomessage:true "Wohnort"]
      [honeypot kontakt_objektart validautocomplete:true move-inline-css:true nomessage:true "Objektart"]
      [cf7apps_hcaptcha cf7apps_hcaptcha-68 size:normal theme:light]

      Kontaktformular

        [honeypot kontakt_wohnort validautocomplete:true move-inline-css:true nomessage:true "Wohnort"]
        [honeypot kontakt_objektart validautocomplete:true move-inline-css:true nomessage:true "Objektart"]
        [cf7apps_hcaptcha cf7apps_hcaptcha-68 size:normal theme:light]