Haus, Einfamilienhaus

Neuer Preis ! Leben und Arbeiten vereint an einem Ort – Großzügiges EFH m. 2 ELW und 240 m² Hallengebäude

25785 Nordhastedt

Über das Objekt

Baujahr 1975

Grundstück 1600 m2

Wohnfläche 285 m2

Badezimmer 3

Objektdaten

  • Objektnr.BR-436-CH-25
  • Wohnfläche285 m2
  • Grundstück1600 m2
  • Badezimmer3
  • ObjektartHaus
  • Nutzfläche240 m2
  • Baujahr1975
  • Gäste-WCJa
  • BalkonJa
  • TerrasseJa

Über das Objekt

Dieses freistehende Einfamilienhaus aus dem Jahr 1975 befindet sich auf einem großzügigen,
ca. 1.600 m² großen Grundstück in ruhiger Wohnlage.

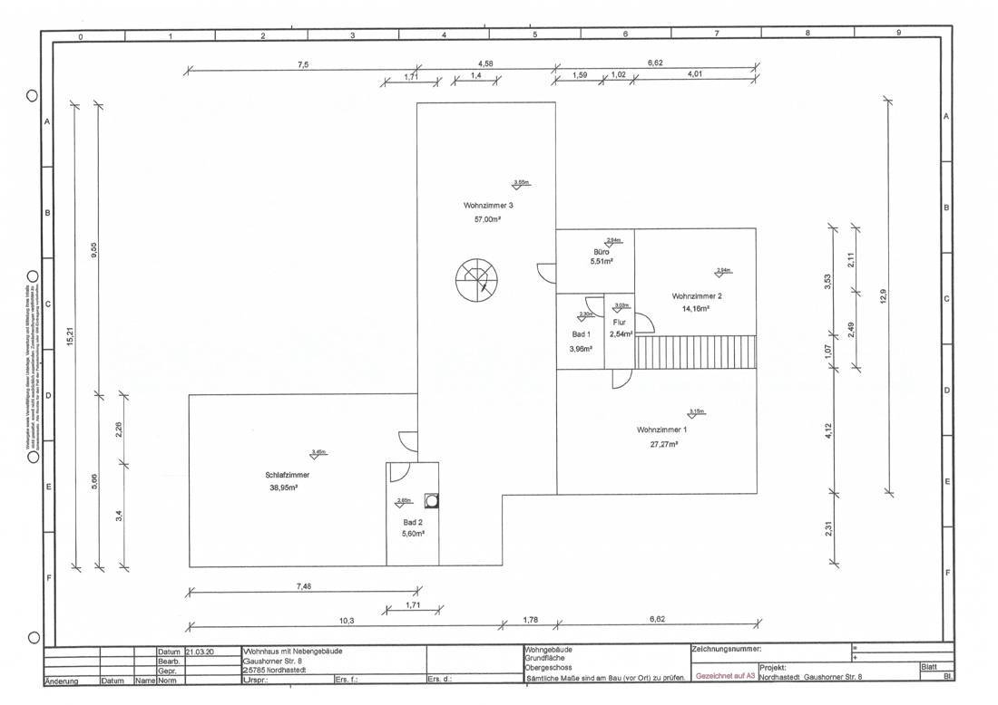
Mit einer Wohnfläche von ca. 285 m², verteilt auf zwei Etagen, bietet dieses Einfamilienhaus großzügigen Raum für komfortables Wohnen. Neben dem Hauptwohnbereich umfasst die Immobilie zudem zwei separate Einliegerwohnungen, die vielfältige Nutzungsmöglichkeiten bieten. Die durchdachte und flexible Raumaufteilung sorgt dabei für ein angenehmes Wohnambiente und ermöglicht eine individuelle Gestaltung nach den persönlichen Bedürfnissen der Bewohner.

Das Innere der Immobilie überzeugt mit einer hellen und einladenden Atmosphäre. Große Fensterflächen sorgen für ein freundliches Wohnklima und lichtdurchflutete Räume.
Neben mehreren Schlafzimmern stehen großzügige Wohnbereiche, Badezimmer, separate WCs, sowie zahlreiche praktische Nebenräume wie Hauswirtschafts- und Lagerräume zur Verfügung.
Hier treffen Funktionalität und Wohnkomfort aufeinander.

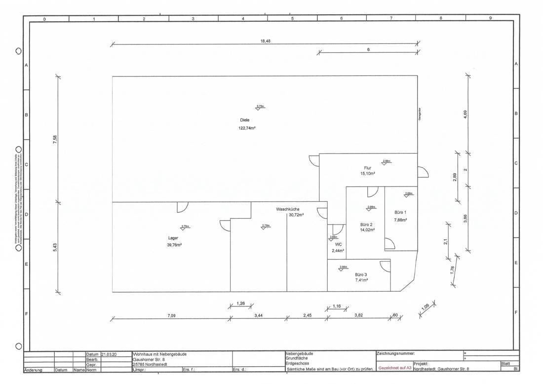
Ein besonderes Highlight ist die separate, ca. 240 m² große Gewerbehalle im hinteren Bereich des Grundstücks. Ehemals als Tierarztpraxis genutzt, eignet sich die Halle hervorragend für vielfältige gewerbliche Nutzungen. Sei es als Büro, Lager, Werkstatt oder für individuelle Konzepte.
Mit eigenem Zugang und klarer räumlicher Trennung zum Wohnhaus ermöglicht sie eine perfekte Kombination aus Wohnen und Arbeiten.

Das gepflegte Grundstück unterstreicht den hervorragenden Gesamteindruck der Immobilie. Ein großzügig gepflasterter Zufahrtsbereich, sowie eine ansprechende Fassadengestaltung runden das Gesamtbild harmonisch ab.

Ob für Familien, Freiberufler oder Unternehmer – dieses außergewöhnliche Anwesen bietet ideale Voraussetzungen für Wohnen und Arbeiten an einem Ort.

Energiedaten

  • EnergieeffizienzklasseC
  • Energiebedarf92.10 kWh (m2a)
  • PrimärenergieträgerGas
  • Energieausweisdatum19.04.2030
  • Energieausweis ArtBedarfsausweis
  • Energie mit WarmwasserNein
  • Baujahr1975
Kaufpreis549.000,00 €

Courtage: 3,57%

Heinz-Günter Sjuth
Für alle Ihre Anliegen

Herr Heinz-Günter Sjuth
Immobilienberater

Telefon: 04852 – 8377770
Mobil: 0176 – 2460 6053

heinz-guenter.sjuth@werth-immobilien.de

Lage und Umgebung

Das charmante Einfamilienhaus liegt am Rand des idyllischen Ortes Nordhastedt, eingebettet in die malerische Landschaft Schleswig-Holsteins. Diese Lage bietet eine wunderbare Verbindung aus ländlicher Ruhe und städtischer Nähe. Nur 7,5 km entfernt lockt das Zentrum mit einer Vielzahl an Dienstleistungen und kulturellen Angeboten. Das Haus ist von wunderschöner Natur umgeben, mit viel Wald in der Nähe sowie dem malerischen Mühlenteich, was es zu einem idealen Rückzugsort macht.

Für den täglichen Bedarf sind Einkaufsmöglichkeiten bequem in nur 500 Metern erreichbar, was Ihren Alltag besonders komfortabel gestaltet. Familien profitieren von der Nähe zu Bildungseinrichtungen, denn ein Kindergarten sowie eine Grundschule befinden sich jeweils nur etwa 1 km vom Zuhause entfernt. Realschulen und Gymnasien sind in nur 6,5 km Entfernung gut zu erreichen, was die Gegend auch für heranwachsende Schulkinder attraktiv macht.

Die besondere Lage am Ortsrand ermöglicht einen unmittelbaren Zugang zur umliegenden Natur. Die Anbindung an die Autobahn ist mit einer Distanz von 11 km ebenfalls optimal, sodass Sie flexibel und schnell Ihre Reiseziele erreichen können. Nordhastedt bietet somit eine herausragende Kombination aus ländlicher Idylle und praktischer Infrastruktur, die Ihnen ein entspanntes Leben auf dem Land in der Nähe von urbanen Einrichtungen ermöglicht.

In der Nähe

  • Kindergaerten-1,0 KM
  • Grundschule-1,0 KM
  • Realschule-6,5 KM
  • Einkaufsmoeglichkeiten-0,5 KM
  • Gymnasium-6,5 KM
  • Autobahn-11,0 KM
  • Zentrum-7,5 KM

Kontakt zu Ihrem Immobilienberater

Heinz-Günter Sjuth
Für alle Ihre Anliegen

Herr Heinz-Günter Sjuth
Immobilienberater

Telefon: 04852 – 8377770
Mobil: 0176 – 2460 6053

heinz-guenter.sjuth@werth-immobilien.de

    Ich bitte um:
    Bitte beweise, dass du kein Spambot bist und wähle das Symbol Tasse.

    Energieausweis erstellen

    Ihr Energieausweis in wenigen Schritten - Schnell, günstig und rechtskonform

    jetzt erstellen
    Kontakt

    Wie kann ich Ihnen helfen?

    Ansprechpartner

    Sven Möller

    Geschäftsführung Vertrieb

    Telefon: 04832 – 979 2971
    Mobil: 0160 – 9777 1163

    Dürfen Wir Sie zurückrufen?

      Kontaktformular