Haus

Neuer Preis ! Neuwertiges WGH in zentraler Lage, zur Eigennutzung für Ihre Geschäftsidee oder als sicheres Anlageobjekt !

25709 Marne

Über das Objekt

Baujahr 2020

Grundstück 340 m2

Wohnfläche 110 m2

Objektdaten

  • Objektnr.BR-449-CH-25
  • Wohnfläche110 m2
  • Grundstück340 m2
  • ObjektartHaus
  • Baujahr2020
  • AusstattungStandard
  • Gäste-WCNein
  • BalkonNein
  • TerrasseNein

Über das Objekt

Zum Kauf angeboten wird ein modernes Wohn- und Geschäftshaus in der charmanten Stadt Marne. Das Gebäude wurde im Jahr 2021 nach einem Feuer komplett neu errichtet und besticht durch seine gelungene Kombination aus einer großzügigen Gewerbefläche sowie zwei modernen Wohneinheiten.
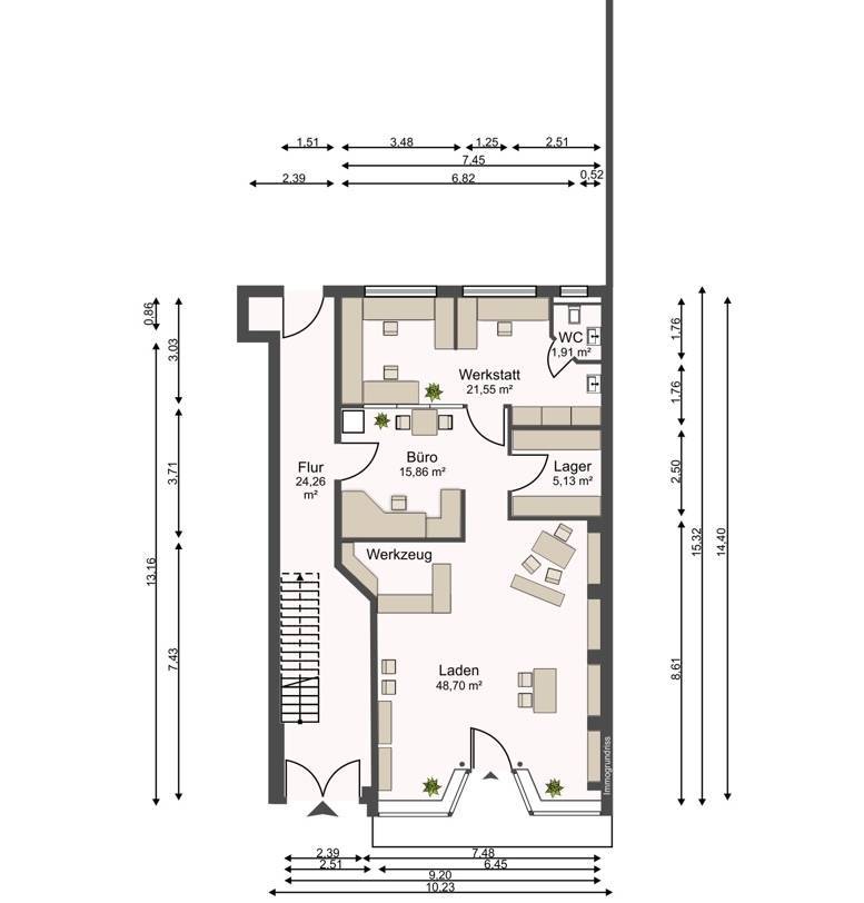
Auf einer Grundstücksfläche von ca. 340 m² bietet das Objekt im Erdgeschoss eine 110 m² große Ladenfläche, die von der zentralen Lage profitiert. Die Verkaufsfläche eröffnet vielfältige Nutzungsmöglichkeiten und lädt dazu ein, kreative Geschäftsideen zu verwirklichen.
Im Obergeschoss befinden sich zwei stilvolle Wohnungen, jeweils mit einer Fläche von 55 m², die durch helle Wohnräume bestechen. Beide Wohneinheiten präsentieren sich im modernen Stil und sind mit einer hochwertigen Einbauküche ausgestattet, die den Alltag erleichtert und zum Kochen einlädt. Zusätzlich verfügen die Wohnungen über ein modernes Duschbad. Die Fußbodenheizung sorgt ganzjährig für behaglichen Komfort und verwandelt die Wohnungen in eine Wohlfühloase.
Das Wohn- und Geschäftshaus überzeugt durch seine Ausstattungsqualität und bietet sowohl Investoren als auch Eigennutzern ein exzellentes Potenzial. Nutzen Sie die Gelegenheit, um in eine Immobilie mit vielseitigen Möglichkeiten zu investieren.
Auf Wunsch würde der bisherige Betreiber die Ladenfläche mit einer Wohnung weiterhin übernehmen.

Energiedaten

  • EnergieeffizienzklasseA
  • Energiebedarf43.80 kWh (m2a)
  • Energieausweisdatum04.05.2030
  • Energieausweis ArtBedarfsausweis
  • Energie mit WarmwasserNein
  • Baujahr2020
Kaufpreis620.000,00 €

Courtage: 4,76%

Heinz-Günter Sjuth
Für alle Ihre Anliegen

Herr Heinz-Günter Sjuth
Immobilienberater

Telefon: 04852 – 8377770
Mobil: 0176 – 2460 6053

heinz-guenter.sjuth@werth-immobilien.de

Lage und Umgebung

Das angebotene Wohn- und Geschäftshaus befindet sich in einer ausgezeichneten Lage in Marne, einer charmanten Stadt an der Nordseeküste Schleswig-Holsteins.. Diese Immobilie bietet eine ideale Balance zwischen urbanem Komfort und ländlicher Ruhe und ist direkt im Stadtzentrum von Marne gelegen. Hier finden Sie eine Vielzahl von Einkaufsmöglichkeiten, die Ihren täglichen Bedarf bequem abdecken.

Für Familien ist diese Lage ebenso attraktiv wie praktisch: In nur 1 km Entfernung befinden sich mehrere Bildungsinstitutionen, darunter ein Kindergarten, eine Grundschule, eine Realschule und ein Gymnasium. Diese kurze Distanz bietet ideale Voraussetzungen, um Kindern einen stressfreien Schulweg zu ermöglichen.

Trotz der zentralen Lage ist die Anbindung an die überregionale Infrastruktur bequem gewährleistet, da die nächste Autobahn in nur 35 km erreichbar ist.

Erleben Sie das Beste aus beiden Welten in Marne: Die Nähe zu allen wichtigen Anlaufstellen und die idyllische Atmosphäre einer Kleinstadt, die das Leben hier so lebenswert macht.

In der Nähe

  • Kindergaerten-1,0 KM
  • Grundschule-1,0 KM
  • Realschule-1,0 KM
  • Einkaufsmoeglichkeiten-0,5 KM
  • Gymnasium-1,0 KM
  • Autobahn-35,0 KM
  • Zentrum-0,5 KM

Kontakt zu Ihrem Immobilienberater

Heinz-Günter Sjuth
Für alle Ihre Anliegen

Herr Heinz-Günter Sjuth
Immobilienberater

Telefon: 04852 – 8377770
Mobil: 0176 – 2460 6053

heinz-guenter.sjuth@werth-immobilien.de

    Ich bitte um:
    Bitte beweise, dass du kein Spambot bist und wähle das Symbol Flagge.

    Energieausweis erstellen

    Ihr Energieausweis in wenigen Schritten - Schnell, günstig und rechtskonform

    jetzt erstellen
    Kontakt

    Wie kann ich Ihnen helfen?

    Ansprechpartner

    Sven Möller

    Geschäftsführung Vertrieb

    Telefon: 04832 – 979 2971
    Mobil: 0160 – 9777 1163

    Dürfen Wir Sie zurückrufen?

      Kontaktformular