Wohnung, Erdgeschoss

Strand & Altstadt direkt um die Ecke – 2 Zimmer Erdgeschosswohnung

24340 Eckernförde

Über das Objekt

Baujahr 1984

Grundstück 0 m2

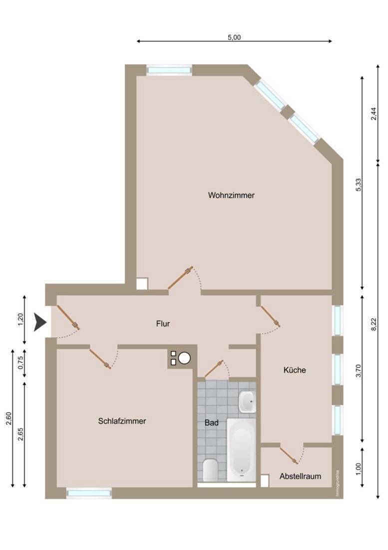
Wohnfläche 55.88 m2

Zimmer 2

Badezimmer 1

Stellplätze 1

Objektdaten

  • Objektnr.BR-498-CH-25
  • Wohnfläche55.88 m2
  • Zimmer2
  • Schlafzimmer1
  • Badezimmer1
  • Stellplätze1
  • ObjektartWohnung
  • Baujahr1984
  • AusstattungStandard
  • Gäste-WCNein
  • BalkonNein
  • TerrasseNein

Über das Objekt

Diese Erdgeschosswohnung im Herzen von Eckernförde vereint städtischen Komfort mit maritimem Flair. Auf ca. 56 m² bietet sie ein ideales Zuhause für Singles oder Paare.
Besonders attraktiv ist die hervorragende Lage: Hafen, Strand und Innenstadt sind nur wenige Meter entfernt, perfekt für alle, die kurze Wege und die unmittelbare Nähe zum Wasser schätzen.
Das 1984 errichtete Wohnhaus befindet sich in einem gepflegten Zustand. Die Wohnung verfügt über zwei Zimmer, darunter ein Schlafzimmer und einen hellen Wohnbereich.
Die Küche ist mit einer Einbauküche ausgestattet, direkt angrenzend befindet sich ein praktischer Abstellraum, der Stauraum für Vorräte oder Haushaltsutensilien bietet. Das Badezimmer mit Badewanne rundet das Raumangebot ab.
Ein zusätzlicher Abstellraum im Keller sowie ein Stellplatz in der Tiefgarage erhöhen den Wohnkomfort.
Der begrünte Innenhof schirmt angenehm von der Stadt ab und bietet einen geschützten Eingangsbereich.
Das monatliche Hausgeld beträgt 327,00 €.

Energiedaten

  • EnergieeffizienzklasseD
  • PrimärenergieträgerFernwärme
  • Energieausweisdatum21.08.2028
  • Energieausweis ArtVerbrauchsausweis
  • Energie mit WarmwasserNein
  • Baujahr1984
  • HeizungsartFernwärme
Kaufpreis212.000,00 €

Courtage: 3,57%

Carolina Hoy
Für alle Ihre Anliegen

Frau Carolina Hoy
Immobilienberaterin

Telefon: 04832 – 6017937
Mobil: 0172 – 805 7658

carolina.hoy@werth-immobilien.de

Galerie

Lage und Umgebung

Diese charmante Erdgeschosswohnung liegt in bester Lage von Eckernförde, eine lebendige Küstenstadt an der Ostsee. Die zentrale Lage in der Innenstadt ermöglicht es Ihnen, sämtliche Annehmlichkeiten bequem zu Fuß zu erreichen. Die gemütliche Altstadt mit ihren kleinen Boutiquen und Cafés lädt zum entspannten Bummeln und Verweilen ein.
Der Strand befindet sich nur wenige Meter entfernt und bietet eine wohltuende Auszeit direkt am Wasser. Auch der Hafen liegt in unmittelbarer Nähe und eignet sich hervorragend für lange Spaziergänge in maritimer Atmosphäre.
Ein breites Freizeitangebot mit verschiedenen Sportvereinen, kreativen Kursen und dem örtlichen Wellenbad bietet abwechslungsreiche Aktivitäten für Groß und Klein.
Die Autobahn ist rund 20 Kilometer entfernt und gewährleistet eine schnelle Anbindung in Richtung Flensburg und Hamburg.
Diese Lage bietet Ihnen ein besonders lebenswertes Umfeld, ideal für unterschiedliche Lebensphasen und Bedürfnisse.

In der Nähe

  • Kindergaerten-0,5 KM
  • Grundschule-1,5 KM
  • Realschule-4,0 KM
  • Einkaufsmoeglichkeiten-0,5 KM
  • Gymnasium-4,0 KM
  • Autobahn-19,0 KM
  • Zentrum-0,5 KM

Kontakt zu Ihrem Immobilienberater

Carolina Hoy
Für alle Ihre Anliegen

Frau Carolina Hoy
Immobilienberaterin

Telefon: 04832 – 6017937
Mobil: 0172 – 805 7658

carolina.hoy@werth-immobilien.de

    Ich bitte um:
    Bitte beweise, dass du kein Spambot bist und wähle das Symbol Haus.

    Energieausweis erstellen

    Ihr Energieausweis in wenigen Schritten - Schnell, günstig und rechtskonform

    jetzt erstellen
    Kontakt

    Wie kann ich Ihnen helfen?

    Ansprechpartner

    Sven Möller

    Geschäftsführung Vertrieb

    Telefon: 04832 – 979 2971
    Mobil: 0160 – 9777 1163

    Dürfen Wir Sie zurückrufen?

      Kontaktformular