Haus, Einfamilienhaus

Tolles großzügiges Einfamilienhaus in begehrter ruhiger Lage in Harrislee. TOP ! Ansehen !

24955 Harrislee

Über das Objekt

Baujahr 2009

Grundstück 538 m2

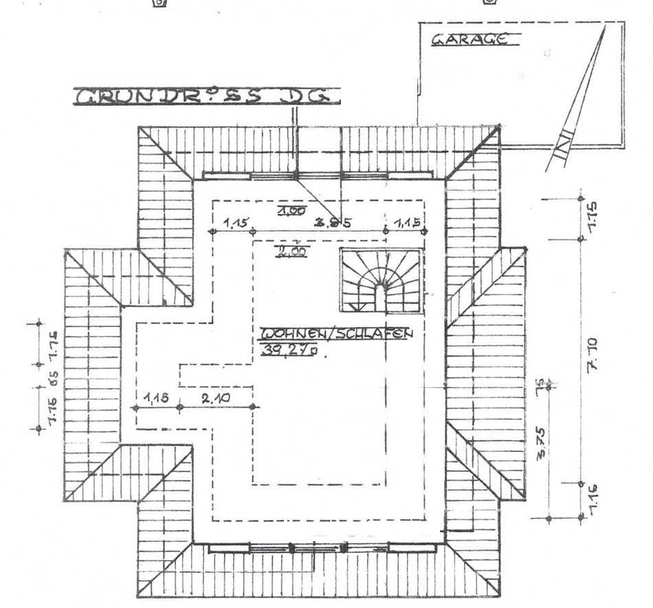
Wohnfläche 135 m2

Zimmer 3

Badezimmer 1

Stellplätze 3

Objektdaten

  • Objektnr.FL-303-TN-25
  • Wohnfläche135 m2
  • Grundstück538 m2
  • Zimmer3
  • Schlafzimmer2
  • Badezimmer1
  • Stellplätze3
  • ObjektartHaus
  • Baujahr2009
  • AusstattungGehoben
  • Gäste-WCJa
  • BalkonNein
  • TerrasseJa

Über das Objekt

Willkommen in Ihrem neuen Zuhause in Harrislee – einem charmanten Einfamilienhaus, das sich perfekt für Familien oder Paare eignet, die nach einem modernen Wohnraum mit gehobener Ausstattung suchen.
Dieses sehr gut in einer Sackgasse gelegenes Haus mit tollen Nachbar-Häusern und gepflegten Grundstücken freut sich auf Sie.

Dieses im Jahr 2009 erbaute Haus bietet auf zwei Etagen eine Wohnfläche von ca. 135 m² und überzeugt durch seine durchdachte Raumaufteilung und stilvolle Gestaltung.

Die große Doppelgarage bietet Platz für 2 Fahrzeuge und die Auffahrt verfügt über 3 Stellplätze.

Eine Photovoltaikanlage 10KV mit 6 KV Speicher (2 Jahre alt) ist auf dem Dach und auf der Garage verbaut und muß zusätzlich ausgelöst oder weiterfinanziert werden (näheres zu den Vertragsdaten bei der Besichtigung).

Beheizt wird das Haus durch Erdwärme.

Das großzügige Grundstück erstreckt sich über ca. 538 m² und lädt mit einer sonnigen Terrasse zu entspannten Stunden im Freien ein. Im Inneren des Hauses erwarten Sie drei helle Zimmer die Ihnen jede Menge Platz für individuelle Gestaltungsmöglichkeiten bieten. Das Obergeschoß ist als ein Raum gebaut und bietet somit tolle Aufteilungsmöglichkeiten. Hier können durchaus 2 Zimmer gestalltet werden. Das moderne Badezimmer sowie ein zusätzliches Gäste-WC unterstreichen den hohen Wohnkomfort.

Die hochwertige Einbauküche wird Hobbyköche begeistern und ist der perfekte Ort, um kulinarische Köstlichkeiten zu zaubern. Dank der gehobenen Ausstattung und der liebevoll gestalteten Details wurde hier ein harmonisches Gesamtbild geschaffen, das Ihnen ein Gefühl von Behaglichkeit vermittelt.

Dieses attraktive Einfamilienhaus befindet sich in einer ruhigen und dennoch zentralen Lage in Harrislee und bietet Ihnen alle Vorzüge eines modernen Lebens. Die Immobilie ist nach Absprache verfügbar und wartet darauf, von Ihnen bewohnt zu werden. Nutzen Sie die Gelegenheit und sichern Sie sich Ihr neues Zuhause, das keine Wünsche offen lässt.

Energiedaten

  • EnergieeffizienzklasseA+
  • PrimärenergieträgerErdwärme
  • Energieausweisdatum23.07.2035
  • Energieausweis ArtVerbrauchsausweis
  • Energie mit WarmwasserNein
  • Baujahr2009
Kaufpreis407.000,00 €

Courtage: 3,57%

Thomas Nowark
Für alle Ihre Anliegen

Herr Thomas Nowark
Immobilienberater

Telefon: 004946199936405
Mobil:

thomas.nowark@werth-immobilien.de

Galerie

Lage und Umgebung

Willkommen in Harrislee, einem charmanten Ort im schönen Norden Deutschlands! Dein neues Zuhause befindet sich in einem lebendigen und dennoch ruhigen Viertel, ideal für Familien und all jene, die ein entspanntes Leben in der Nähe der Natur schätzen. Die Nähe zur dänischen Grenze verleiht Harrislee einen besonderen internationalen Flair und bietet vielfältige Freizeitmöglichkeiten, wenn Du mal Lust auf einen schnellen Tapetenwechsel hast.

In der Umgebung findest Du alles, was das Herz begehrt – von gemütlichen Cafés und Restaurants, über attraktive Shoppingmöglichkeiten, bis hin zu Schulen und Kindergärten. Auch die Anbindung an öffentliche Verkehrsmittel ist hervorragend, sodass Du schnell und unkompliziert ins nahegelegene Flensburg oder zu anderen spannenden Zielen in der Region gelangen kannst.

Für Erholung und Naturerlebnisse sorgen die zahlreichen Parks und Grünflächen, die Harrislee bietet. Du kannst wunderbar spazieren gehen oder ausgedehnte Fahrradtouren unternehmen. Wenn Du die Ostsee liebst, hast Du Glück: Die traumhaften Strände sind nur eine kurze Autofahrt entfernt. Bowle Deinen Alltag auf und genieße das Leben in dieser rundum attraktiven Umgebung!

Kontakt zu Ihrem Immobilienberater

Thomas Nowark
Für alle Ihre Anliegen

Herr Thomas Nowark
Immobilienberater

Telefon: 004946199936405
Mobil:

thomas.nowark@werth-immobilien.de

    Ich bitte um:
    Bitte beweise, dass du kein Spambot bist und wähle das Symbol Schlüssel.

    Energieausweis erstellen

    Ihr Energieausweis in wenigen Schritten - Schnell, günstig und rechtskonform

    jetzt erstellen
    Kontakt

    Wie kann ich Ihnen helfen?

    Ansprechpartner

    Sven Möller

    Geschäftsführung Vertrieb

    Telefon: 04832 – 979 2971
    Mobil: 0160 – 9777 1163

    Dürfen Wir Sie zurückrufen?

      Kontaktformular