Haus, Einfamilienhaus

Vier Wände voller Leben – Ihr neues Zuhause in Kleve!

25779 Kleve

Über das Objekt

Baujahr 1900

Grundstück 674 m2

Wohnfläche 159 m2

Zimmer 4

Badezimmer 2

Objektdaten

  • Objektnr.BR-489-CH-25
  • Wohnfläche159 m2
  • Grundstück674 m2
  • Zimmer4
  • Schlafzimmer3
  • Badezimmer2
  • ObjektartHaus
  • Baujahr1900
  • AusstattungStandard
  • Gäste-WCJa
  • BalkonNein
  • TerrasseJa

Über das Objekt

Dieses charmante Einfamilienhaus in Kleve wartet darauf, neue Bewohner willkommen zu heißen. Das Haus, dessen Baujahr auf etwa 1900 geschätzt wird, beeindruckt mit einem zeitlosen Charakter.
Auf einem großzügigen Grundstück von ca. 674 m² bietet das Haus rund 159 m² Wohnfläche, perfekt für Familien, die ein Zuhause mit Platz und Wohlfühlatmosphäre suchen.
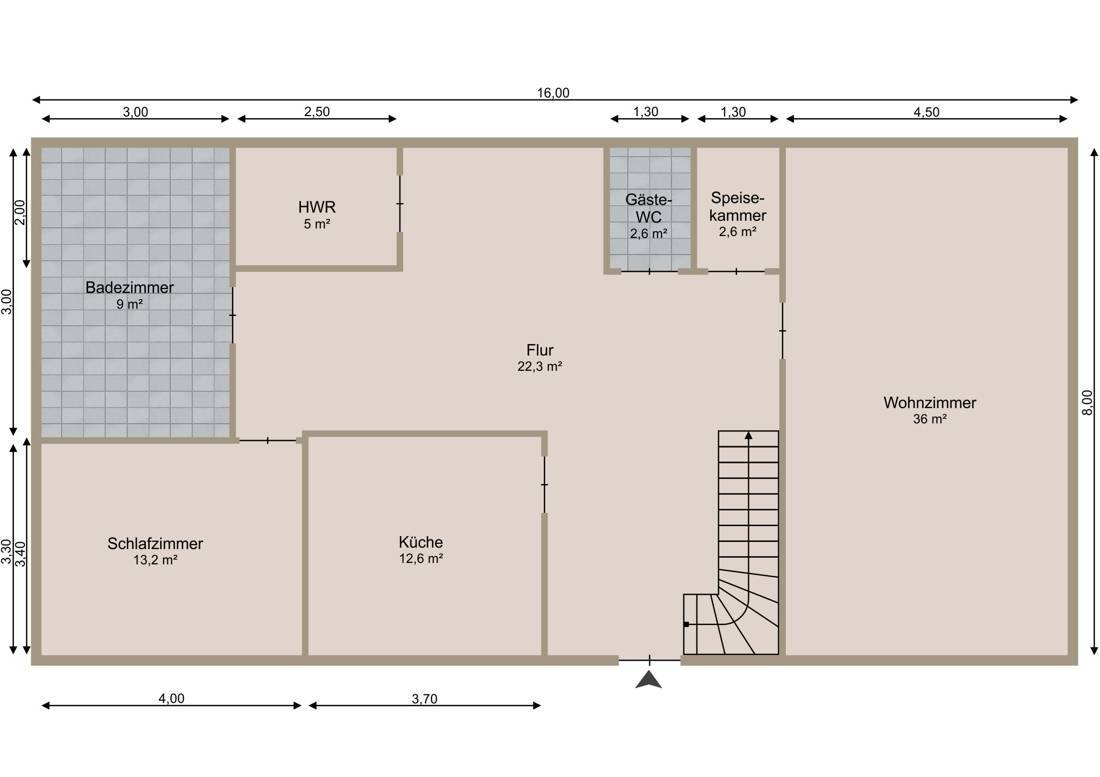
Im Erdgeschoss heißt Sie ein einladender Eingangsbereich willkommen, der direkt in das helle Wohn- und Esszimmer führt. Zudem befinden sich auf dieser Ebene ein großzügiges Schlafzimmer, ein Badezimmer mit Dusche und Wanne sowie ein separates Gäste-WC. Die Küche ist mit einer Einbauküche ausgestattet und der Hauswirtschaftsraum bietet extra Stauraum und Funktionalität.
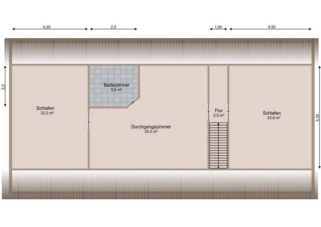
Im Dachgeschoss erwarten Sie zwei Zimmer sowie ein Durchgangszimmer, welche sich flexibel als Kinderzimmer, Büro oder kreativer Rückzugsort nutzen lassen. Ein weiteres Duschbad sorgt auf dieser Etage für zusätzlichen Komfort.
Im Außenbereich lädt die überdachte Terrasse zu entspannten Stunden im Freien ein. Der gepflegte Garten mit großem Werkstatt- bzw. Gartenhaus bietet viel Platz für Hobbys und Handwerk.
Das Haus befindet sich in einem gepflegten Zustand und bietet die perfekte Basis, um eigene Wohnideen zu verwirklichen.

Energiedaten

  • EnergieeffizienzklasseE
  • Energiebedarf138.30 kWh (m2a)
  • PrimärenergieträgerGas
  • Energieausweisdatum12.10.2035
  • Energieausweis ArtBedarfsausweis
  • Energie mit WarmwasserNein
  • Baujahr1900
  • HeizungsartZentralheizung
Kaufpreis229.000,00 €

Courtage: 3,57%

Carolina Hoy
Für alle Ihre Anliegen

Frau Carolina Hoy
Immobilienberaterin

Telefon: 00491728057658
Mobil: 00491728057658

carolina.hoy@werth-immobilien.de

Galerie

Lage und Umgebung

Dieses charmante Einfamilienhaus liegt in einer ruhigen Wohngegend von Kleve, umgeben von einer idyllischen, ländlichen Umgebung.
Familien profitieren besonders von der Nähe zu Bildungseinrichtungen: Ein Kindergarten befindet sich nur etwa 200 Meter entfernt, eine Grund- und Realschule ist in rund 3,7 Kilometern schnell erreicht. Auch ein Gymnasium liegt mit etwa 16 Kilometern Entfernung in Heide gut erreichbar.
Einkaufsmöglichkeiten für den täglichen Bedarf finden Sie im nahegelegenen Hennstedt. So lassen sich Besorgungen bequem und ohne weite Wege erledigen.
Die Autobahn in Richtung Heide/ Hamburg erreichen Sie nach etwa 20 Kilometern.
Das Zentrum der Kreisstadt Heide liegt rund 14 Kilometer entfernt. So können Sie die Vorzüge der Stadt jederzeit genießen und sich dennoch über die Ruhe und Gelassenheit eines Dorfes freuen.

In der Nähe

  • Kindergaerten-0,2 KM
  • Grundschule-3,7 KM
  • Realschule-3,7 KM
  • Einkaufsmoeglichkeiten-3,7 KM
  • Gymnasium-16,0 KM
  • Autobahn-20,0 KM
  • Zentrum-14,0 KM

Kontakt zu Ihrem Immobilienberater

Carolina Hoy
Für alle Ihre Anliegen

Frau Carolina Hoy
Immobilienberaterin

Telefon: 00491728057658
Mobil: 00491728057658

carolina.hoy@werth-immobilien.de

    Ich bitte um:
    Bitte beweise, dass du kein Spambot bist und wähle das Symbol Stern.

    Energieausweis erstellen

    Ihr Energieausweis in wenigen Schritten - Schnell, günstig und rechtskonform

    jetzt erstellen
    Kontakt

    Wie kann ich Ihnen helfen?

    Ansprechpartner

    Sven Möller

    Geschäftsführung Vertrieb

    Telefon: 04832 – 979 2971
    Mobil: 0160 – 9777 1163

    Dürfen Wir Sie zurückrufen?

      Kontaktformular