Haus

Wohn- und Geschäftshaus für zukünftige Investitionen!

25767 Albersdorf

Über das Objekt

Baujahr 1900

Grundstück 537 m2

Wohnfläche 191.5 m2

Zimmer 8

Badezimmer 3

Stellplätze 5

Objektdaten

  • Objektnr.BU-454-PVO-24
  • Wohnfläche191.5 m2
  • Grundstück537 m2
  • Zimmer8
  • Schlafzimmer5
  • Badezimmer3
  • Stellplätze5
  • ObjektartHaus
  • Nutzfläche91 m2
  • Baujahr1900
  • AusstattungStandard
  • Gäste-WCNein
  • BalkonNein
  • TerrasseJa

Über das Objekt

Diese großzügige Immobilie bietet eine erstklassige Lage im Herzen von Albersdorf und erstreckt
sich auf einer Grundstücksfläche von 537 qm. Das Objekt bietet vielseitige Nutzungsmöglichkeiten, die sowohl für Gewerbetreibende als auch für Investoren attraktiv sind!
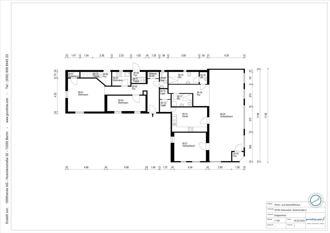
Das Erdgeschoss dieser Immobilie umfasst eine umfangreiche Gewerbefläche von 91 qm, die
früher als Imbiss genutzt wurde. Diese Räumlichkeiten beinhaltet einen geräumigen Verkaufsraum mit Gaststube, eine
Küche, ein zusätzlicher ehemaliger Raucherbereich sowie zwei Gäste-WCs. Diese Flächen eignen sich ideal für Gastronomie oder andere Geschäftsideen und bieten genügend Platz für kreative Konzepte.
Zusätzlich gibt es im Erdgeschoss eine separate Wohnung mit 2 Zimmern auf ca. 50 qm, die sich
sowohl zur Eigennutzung als auch zur Vermietung eignet, was zusätzliche Flexibilität und
Einnahmequellen bietet.
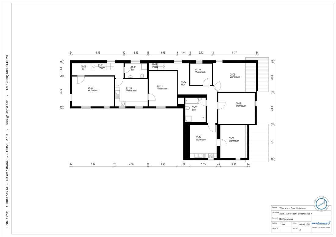
Im Dachgeschoss befinden sich zwei weitere Wohneinheiten, mit einer individuellen
Raumaufteilung und zahlreichen Gestaltungsmöglichkeiten. Eine der Wohnungen verfügt über 2 Zimmer auf 60 qm und die andere Wohneinheit erstreckt sich auf 82 qm mit 4 Zimmern. Diese Wohnungen bieten die Möglichkeit, durch geschickte Renovierungen und Investitionen attraktiven Wohnraum zu schaffen, der den Bedürfnissen moderner Mieter entspricht.
Die Immobilie befindet sich derzeit in einem sanierungsbedürftigen Zustand. Mit den richtigen
Maßnahmen und Investitionen lässt sich jedoch das volle Potenzial dieser Immobilie ausschöpfen
und ein attraktives Objekt daraus machen.
Durch die Kombination von modernen Renovierungsarbeiten und dem Erhalt des ursprünglichen Charmes kann ein einzigartiges Objekt entstehen.
Nutzen Sie die zentrale Lage und die großzügigen Räumlichkeiten, um Ihre Ideen zu verwirklichen
und einen neuen, ansprechenden Standort in Albersdorf zu schaffen.

Derzeit sind zwei Wohnungen im hinteren Teil des Hauses vermietet, weshalb auf eine Bebilderung verzichtet wurde. Beide Wohnungen erbringen eine jährliche Warmmiete von 10.680€ exkl. Strom.
Somit ist bereits der Grundstock von Einnahmen gelegt.

Energiedaten

  • EnergieeffizienzklasseD
  • Energiebedarf121.00 kWh (m2a)
  • PrimärenergieträgerGas
  • Energieausweisdatum17.09.2034
  • Energieausweis ArtBedarfsausweis
  • Energie mit WarmwasserNein
  • Baujahr1900
  • HeizungsartZentralheizung
Kaufpreis199.000,00 €

Courtage: 3,57% inkl. MwSt.

Peter von Osten
Für alle Ihre Anliegen

Herr Peter von Osten
Immobilienberater

Telefon: 004917663065115
Mobil: 004917663065115

peter.vonosten@werth-immobilien.de

Galerie

Lage und Umgebung

Albersdorf liegt auf der leicht hügeligen Geest, etwa 90 km nordwestlich von Hamburg, und zählt zu den schönsten Orten im Kreis Dithmarschen. Die rund 3.500 Einwohner des Luftkurortes profitieren von einer gut funktionierenden Infrastruktur mit Supermärkten, Banken, Ärzten, Apotheken und Dienstleistern. Die Autobahn A23 ist nicht weit entfernt, und mit der Bahn sind die Städte Heide, Büsum und Neumünster schnell erreichbar.
Familien finden in Albersdorf ein breites Bildungsangebot. Vor Ort gibt es drei Kindergärten, eine Grundschule und eine Gemeinschaftsschule.

In der Freizeit bieten zahlreiche Wege rund um Albersdorf die Möglichkeit zu Wandern, Joggen, Walken oder Radfahren. Der nahe gelegene Steinzeitpark bietet spannende Einblicke in die Vergangenheit. Ein weiteres beliebtes Ziel ist der nahe Nord-Ostsee-Kanal, wo man Ozeanriesen und Kreuzfahrtschiffe bestaunen kann.

In den Sommermonaten lädt das beheizte Schwimmbad mit Riesenrutsche und Aktionsbecken zur Erholung ein. Sportbegeisterte können sich im örtlichen Sportverein oder in einem der vielen anderen nahegelegenen Vereine austoben.

In der Nähe

  • Kindergaerten-0,4 KM
  • Grundschule-0,3 KM
  • Realschule-0,5 KM
  • Einkaufsmoeglichkeiten-0,5 KM
  • Gymnasium-13,0 KM
  • Autobahn-14,0 KM
  • Zentrum-0,5 KM

Kontakt zu Ihrem Immobilienberater

Peter von Osten
Für alle Ihre Anliegen

Herr Peter von Osten
Immobilienberater

Telefon: 004917663065115
Mobil: 004917663065115

peter.vonosten@werth-immobilien.de

    Ich bitte um:
    Bitte beweise, dass du kein Spambot bist und wähle das Symbol Baum.

    Energieausweis erstellen

    Ihr Energieausweis in wenigen Schritten - Schnell, günstig und rechtskonform

    jetzt erstellen
    Kontakt

    Wie kann ich Ihnen helfen?

    Ansprechpartner

    Sven Möller

    Geschäftsführung Vertrieb

    Telefon: 04832 – 979 2971
    Mobil: 0160 – 9777 1163

    Dürfen Wir Sie zurückrufen?

      Kontaktformular