Haus

Zentral gelegenes Wohn- und Geschäftshaus in Brunsbüttel

25541 Brunsbüttel

Über das Objekt

Baujahr 1908

Grundstück 304 m2

Wohnfläche 165 m2

Stellplätze 4

Objektdaten

  • Objektnr.BR-483-CH-25
  • Wohnfläche165 m2
  • Grundstück304 m2
  • Stellplätze4
  • ObjektartHaus
  • Nutzfläche228 m2
  • Baujahr1908
  • AusstattungStandard
  • Gäste-WCNein
  • BalkonNein
  • TerrasseNein

Über das Objekt

Dieses gepflegte Wohn- und Geschäftshaus aus dem Jahr 1908 verbindet historischen Charme mit solider Rendite. Die zentrale Lage, die stabile Vermietung und die vielseitigen Nutzungsmöglichkeiten machen das Objekt zu einer lohnenden Investition.
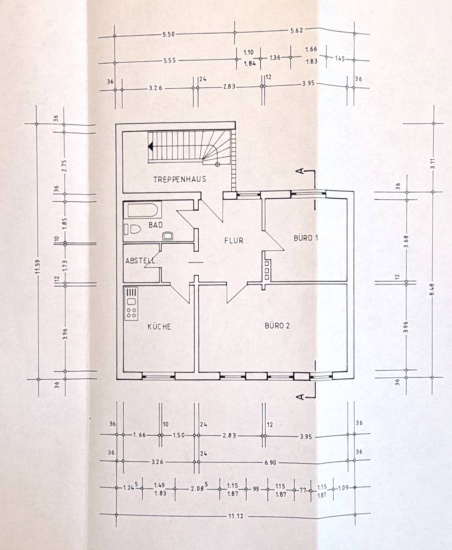
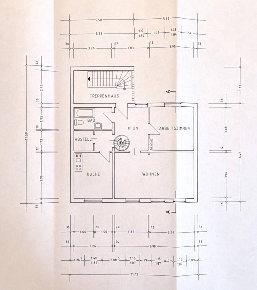
Das Gebäude bietet eine Gesamtfläche von ca. 228 m² auf einem Grundstück von rund 304 m².
In dem ersten und zweiten Obergeschoss stehen zwei Wohnungen mit insgesamt ca. 165 m² Wohnfläche zur Verfügung. Das Erdgeschoss bietet rund 65 m² Gewerbefläche, aufgeteilt in zwei Ladengeschäfte.
Vier Außenstellplätze runden das Angebot ab.
Alle Einheiten sind aktuell vermietet und erwirtschaften jährliche Mieteinnahmen von ca. 18.600 Euro.
Nutzen Sie die Chance, in ein vielseitiges Objekt in attraktiver Lage von Brunsbüttel zu investieren.

Energiedaten

  • EnergieeffizienzklasseH
  • Energiebedarf312.00 kWh (m2a)
  • PrimärenergieträgerGas
  • Energieausweisdatum27.06.2034
  • Energieausweis ArtBedarfsausweis
  • Energie mit WarmwasserNein
  • Baujahr1908
  • HeizungsartZentralheizung
Kaufpreis330.000,00 €

Courtage: 3,57%

Heinz-Günter Sjuth
Für alle Ihre Anliegen

Herr Heinz-Günter Sjuth
Immobilienberater

Telefon: 04852 – 8377770
Mobil: 0176 – 2460 6053

heinz-guenter.sjuth@werth-immobilien.de

Galerie

Lage und Umgebung

Dieses Wohn- und Geschäftshaus befindet sich in ausgezeichneter Lage im Herzen von Brunsbüttel, ideal für geschäftliche Aktivitäten. Zentral gelegen, bietet die Umgebung eine lebendige, gut frequentierte Atmosphäre, die perfekt für Gewerbeeinheiten ist.
Für die Wohneinheiten ist die ausgezeichnete Infrastruktur von besonderem Vorteil, da die Bewohner alltägliche Besorgungen bequem zu Fuß erledigen können. Die Wohneinheiten sind zudem attraktiv für Familien, da Bildungseinrichtungen wie Kindergärten, Grundschulen und Gymnasien nahe gelegen sind. Die nächste Autobahn A23 Richtung Hamburg / Heide ist über die Schnellstraße B5 in circa 28 Kilometern zu erreichen.
Diese erstklassige Lage bietet somit eine perfekte Balance zwischen geschäftlicher Dynamik und familiärem Leben und macht das Objekt zu einer begehrenswerten Investition und einem idealen Lebensmittelpunkt.

In der Nähe

  • Kindergaerten-0,7 KM
  • Grundschule-0,6 KM
  • Einkaufsmoeglichkeiten-0,1 KM
  • Gymnasium-1,2 KM
  • Autobahn-28,0 KM

Kontakt zu Ihrem Immobilienberater

Heinz-Günter Sjuth
Für alle Ihre Anliegen

Herr Heinz-Günter Sjuth
Immobilienberater

Telefon: 04852 – 8377770
Mobil: 0176 – 2460 6053

heinz-guenter.sjuth@werth-immobilien.de

    Ich bitte um:
    Bitte beweise, dass du kein Spambot bist und wähle das Symbol Flugzeug.

    Energieausweis erstellen

    Ihr Energieausweis in wenigen Schritten - Schnell, günstig und rechtskonform

    jetzt erstellen
    Kontakt

    Wie kann ich Ihnen helfen?

    Ansprechpartner

    Sven Möller

    Geschäftsführung Vertrieb

    Telefon: 04832 – 979 2971
    Mobil: 0160 – 9777 1163

    Dürfen Wir Sie zurückrufen?

      Kontaktformular